
Västberga
Snabba Hus Västberga is the second project designed by Andreas Martin-Löf Arkitekter that adapts off-site prefabrication techniques and cost efficient standard materials to provide affordable rental apartments for young people in Stockholm who are waiting for a permanent rental contract. Tenants keep their position in the waiting list for their first real contract during the time they stay in a Snabba Hus apartment.







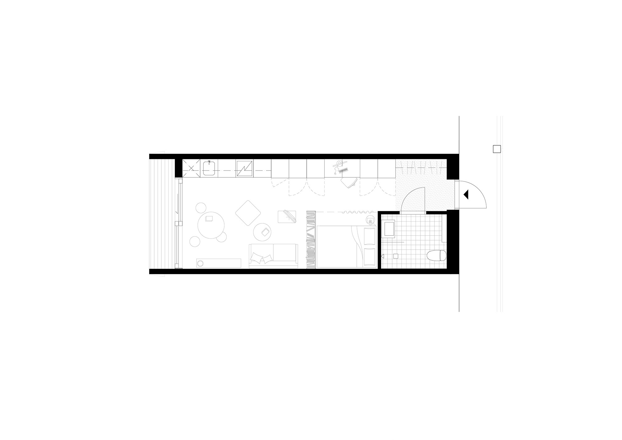
Plans & Details






Team
Andreas Martin-Löf
Adrian Utrilla
David Barnard
Adam Bergendal
Ana Rosales Rodriguez
Matteo Giammartini
Category
Year
2014-2016
Status
Completed
Client
Svenska Bostäder
