
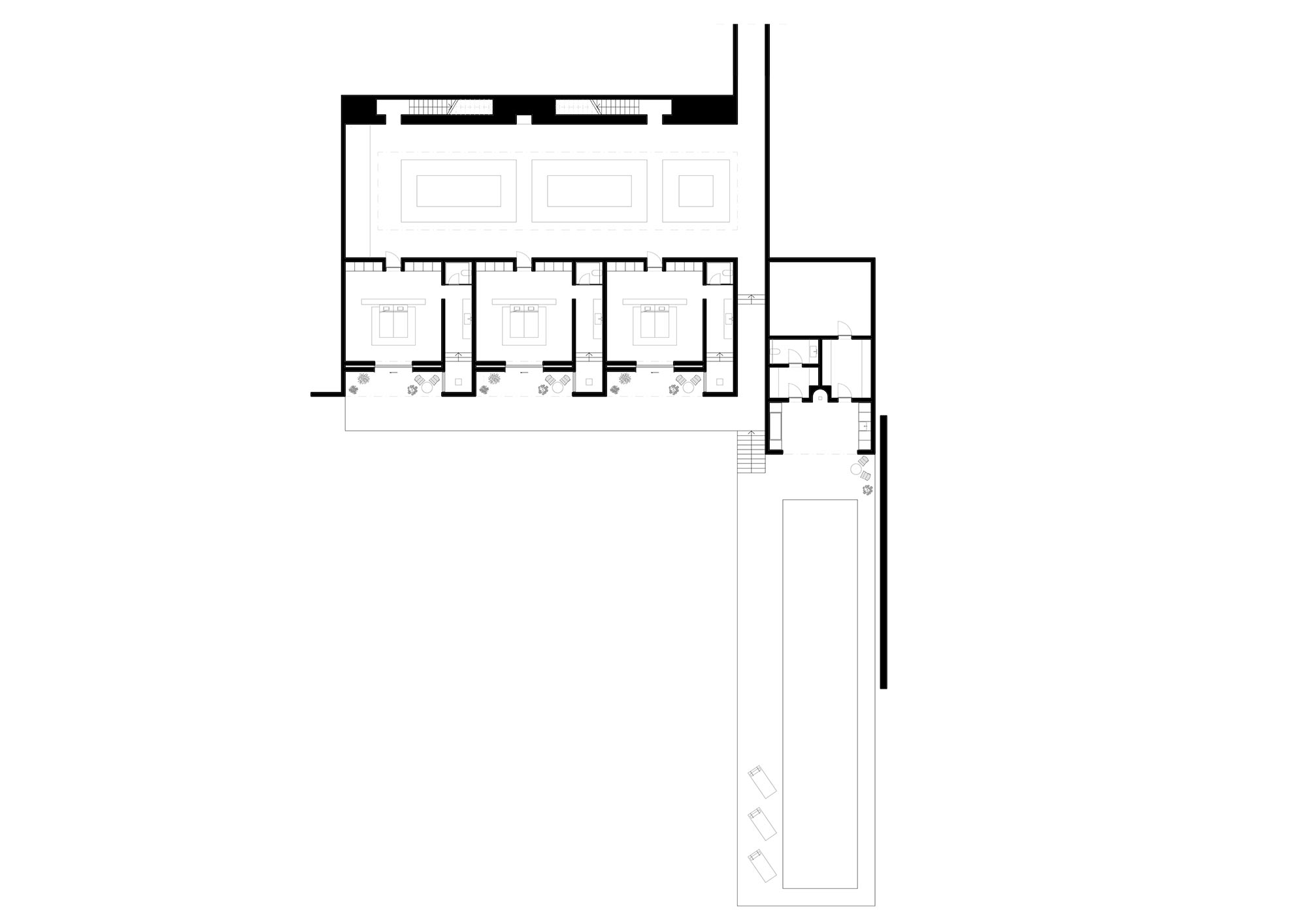
La Reserva
La Reserva is a planned 2000 square meter villa in Sotogrande, Spain. On our first visit to La Reserva de Sotogrande we immediately understood that this stunning site and ambitious project brief was a great opportunity to design a magnificent and unique villa that reflects the values we hold in architecture and landscape design. Southern Spain introduced us to a new set of textures, patinas and a different light. Even the moon looks different compared to Sweden. The design has evolved around the notion of finding modernity in tradition and distilling the future out of the past. The building’s strong axis frames the region’s most famous landmark – the rock of Gibraltar. The building is minimal in appearance but offers richness in the spatially complex interior and in the warm palette of crafted materials inspired by the textures, patinas and light of southern Spain.

Plans & Details









Team
Andreas Martin-Löf
Michele Abirascid
Adam Bergendal
Ana Rosales Rodriguez
Guillermo Sanchez Arsuaga
Daniel Andersson
Category
Year
2018
Client
Private
