
Ten Hotel
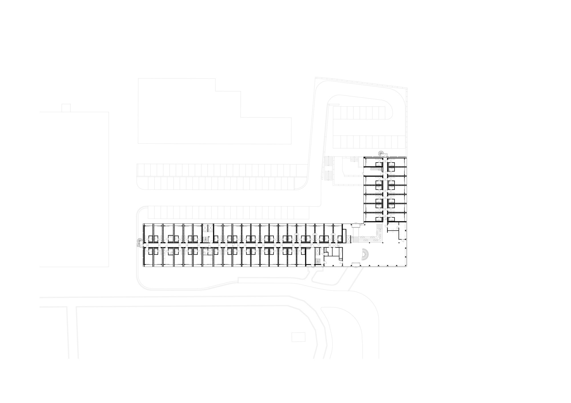
Ten Hotel is located near Upplands Väsby, along the highway that connects Arlanda Airport to Stockholm. The seven-storey building is comprised of 194 modular hotel rooms that are delivered fully-furnished to site. The building takes its form from the modular construction and the site-specific conditions such as topography, access and orientation. This resulted in an L-shaped configuration where two storeys in the middle part of the section straddle the sloping terrain of the site and connect the four-storey basement to the seven-storey tower. A subtle dynamism is created by restricting the connecting volume to two storeys and allowing the seven-storey part to be read as a low tower.






Plans & Details






Team
Andreas Martin-Löf
Edgar Mann
Rakel Östlund
Ana Rosales Rodriguez
Matthew Wilson
Category
Year
2024
Status
Completed
Client
Wallin
