
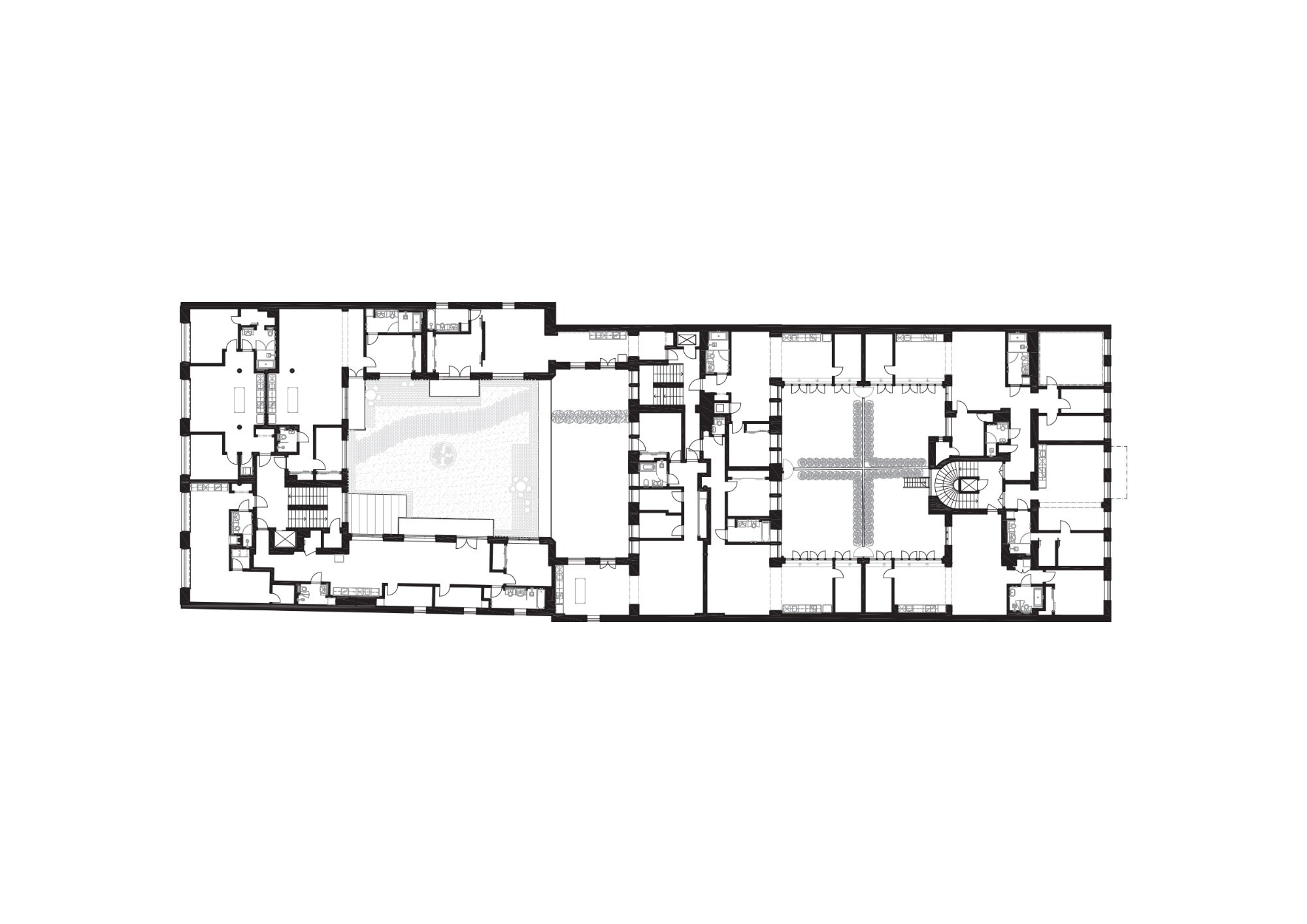
Stråhattfabriken
This housing project in a former straw hat factory on Kungsholmen involved the careful renovation of three buildings – each with a different character. The project is guided by respect for the history of the buildings and is comprised of both renovations to existing floor plans and the addition of new floor plan layouts. The existing qualities, peculiarities and characters of the buildings are retained and complimented with elegant free-standing kitchens, carefully detailed carpentry, balconies and terraces.













Plans & Details



Team
Andreas Martin-Löf
Edgar Mann
Teres Selberg
Eva Johansson
Michael Mleczko
Tobias Jewson
Johan Meisel
Sofia Nyman
Category
Year
2010-2012
Status
Completed
Client
Oscar Properties
