
Lakeside Pool House
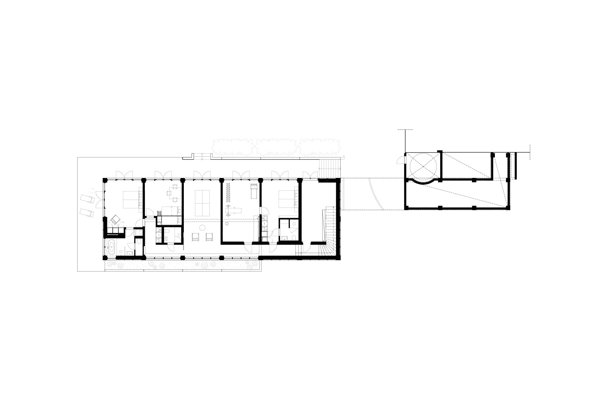
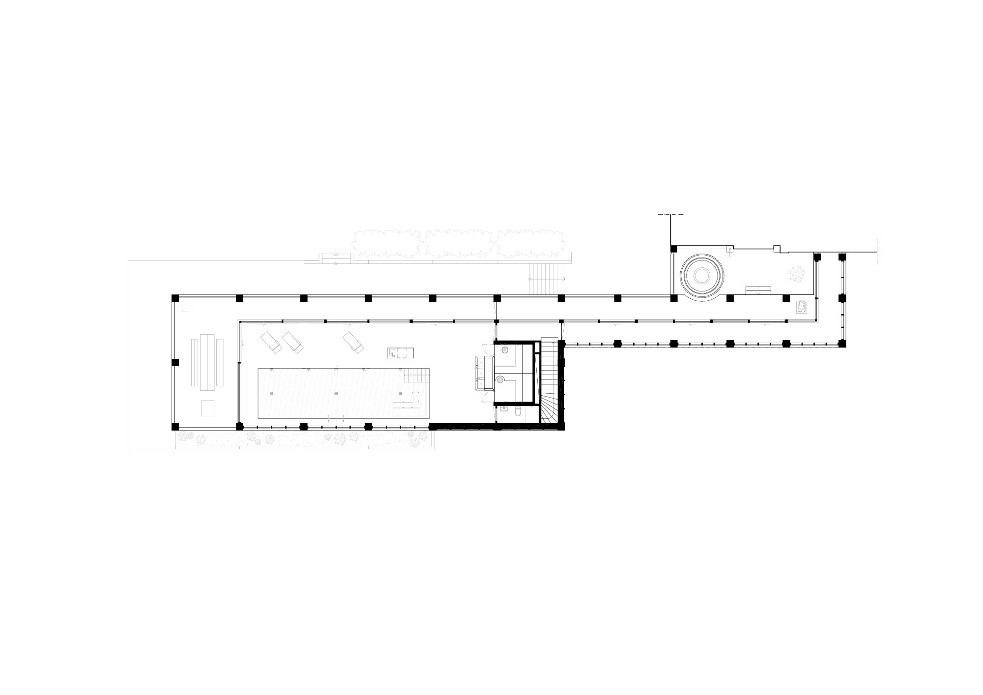
Located on a piece of land that once belonged to one of Sweden’s more famous castle complexes from the 17th century, a grand villa was built in the 1930’s on the shore of Lake Mälaren. We were commissioned to make an extension of the villa - a stripped Classicist style building - that incorporated a pool house, guest suites and relaxation areas.










Plans & Details
Team
Andreas Martin-Löf
Adrian Utrilla
Magdalena Elfström Berg
Category
Year
2018
Client
Private





