
Eda Knivsta
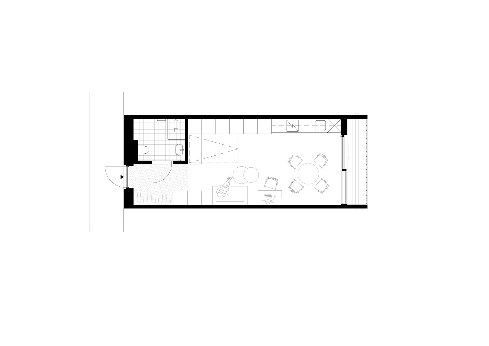
This project is a new and timely prototype for adapting low-cost, standard materials and off-site prefabrication techniques and helps to address the needs of affordable housing for younger people in Sweden. Prefabricated concrete structural elements create a space frame structure that supports prefabricated apartment units. 124 compact, efficient, single-person apartments have been built on this site in a new neighbourhood in Knivsta, Sweden. The project occupies a whole ‘city-block’ and is comprised of 4 connected buildings that are grouped around a private green courtyard.










Plans & Details






Team
Andreas Martin-Löf
Adrian Utrilla
David Barnard
Carl Kärsten
Category
Year
2012-2014
Status
Completed
Client
Junior Living AB
