
Balneum
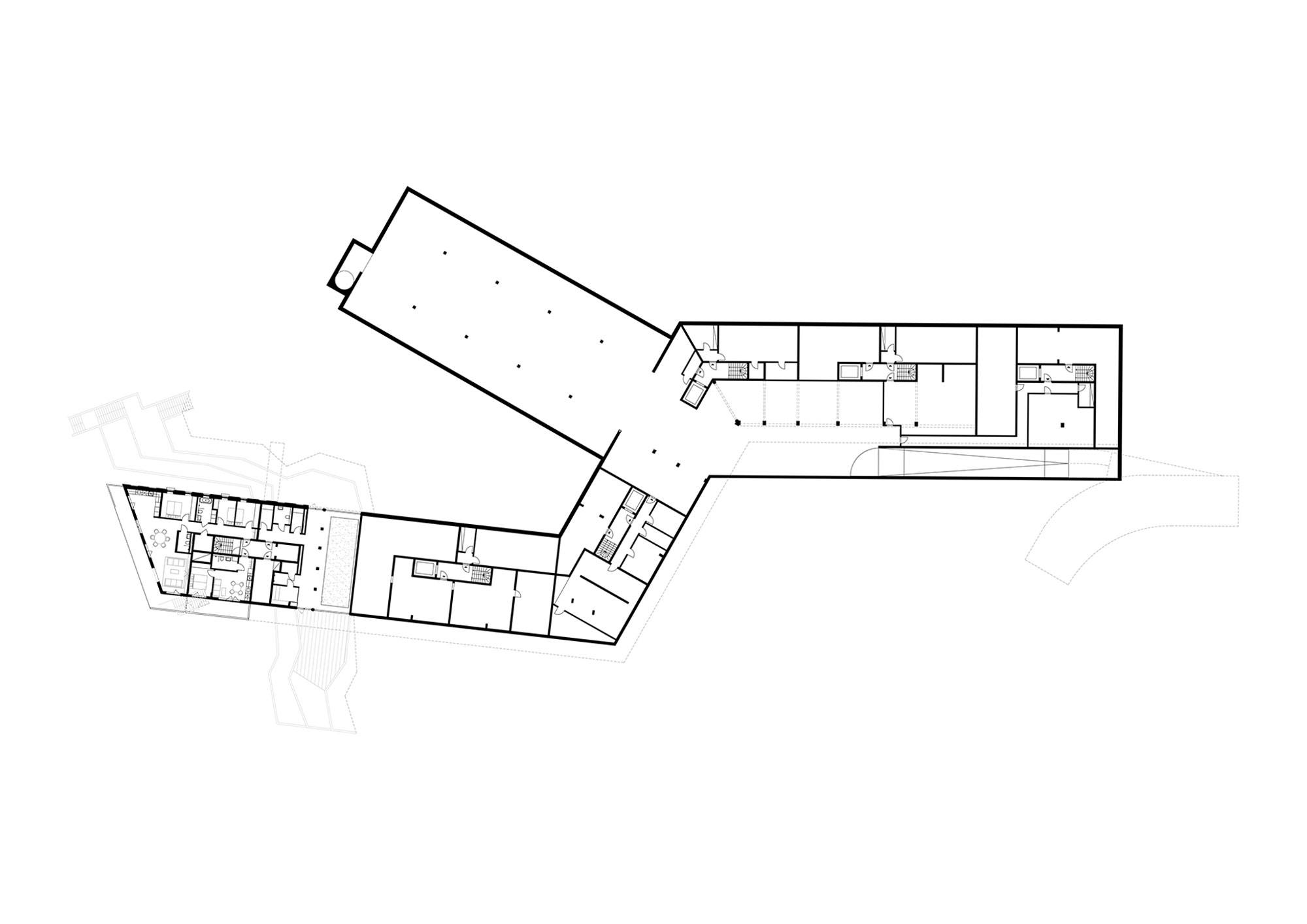
Balneum sits on a dramatic waterfront site and forms the edge to a new residential area at Gröndal Strand on the outskirts of central Stockholm. The long and crooked building contains 134 apartments and is carefully placed on the steeply sloping site to create an exciting silhouette toward the water and to reduce the perception of the building’s volume.





Plans & Details







Team
Andreas Martin-Löf
Michele Abirascid
David Barnard
Matteo Giammartini
Category
Year
2014-2019
Status
Completed
Client
Genova Property Group
